ހުޅުމާލޭ 2 ގައި މިކްސްޑް ލަގްޒަރީ ރެޒިޑެންޝަލް ޕްރޮޖެކްޓެއް ހިންގާނެ ބަޔަކު ހޯދަން ހައުސިން ޑިވެލޮޕްމަންޓް ކޯޕަރޭޝަން (އެޗްޑީސީ) އިން އާންމުކޮށްފި އެވެ.

އެޗްޑީސީން ވަނީ އެކަމަށް ޝައުގުވެރިވާ ފަރާތްތަކުން އެކްސްޕްރެޝަން އޮފް އިންޓްރެސްޓް (އީއޯއައި) މިމަހުގެ 24 ވަނަ ދުވަހުގެ 12:00 ގެ ކުރިން ހުށަހެޅުމުގެ ފުރުސަތު ހުޅުވާލައިފަ އެވެ.

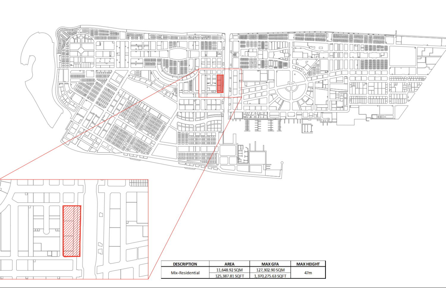
އެޗްޑީސީން ބުނި ގޮތުގައި އެ މަޝްރޫއު ކުރިއަށް ގެންދިއުމަށް ފޭސް ދޭއްގެ 125،387 އަކަފޫޓުގެ ބިމެއް ވަނީ ހަމަޖައްސައިފަ އެވެ. އެތަނުގައި 47 މީޓަރު އުހަށް އިމާރާތް ކުރެވޭނެ އެވެ.

މިކްސްޑް ލަގްޒަރީ ރެޒިޑެންޝަލް ބިލްޑިން އަޅާނެ ސަރަހައްދު.
މިކްސްޑް ލަގްޒަރީ ރެޒިޑެންޝަލް ބިލްޑިން އަޅާނެ ސަރަހައްދު.

އެ މަޝްރޫއު ހަވާލުކުރުމުގައި އިސްކަންދޭނީ ޑިވެލޮޕްމަންޓް އެންޑް ސޭލް ރައިޓްސް މޮޑެލް އަށެެވެ. އެކަމަކު އެޗްޑީސީން ބުނި ގޮތުގައި އެ ކޯޕަރޭޝަނަށް ހުށަހަޅާ އީއޯއައިތައް އެހެން މޮޑެލްތަކަށް ވެސް ހުށަހެޅޭނެ ކަމަށާއި އޭގައި ދެ ފަރާތަށް ވާނެ ފައިދާތައް ހިމަނަންވާނެ އެވެ.

އެކަމަށް އެކަކަށް ވުރެ ގިނަ ފަރާތްތަކުން ޝައުގުވެރިކަން ފާޅުކޮށްފި ނަމަ، މަޝްރޫއު ހަވާލުކުރާނީ އެ ކުންފުނީގެ ވިޝަން އާއި މާސްޓަޕްލޭން، އެންމެ ފުރިހަމައަށް ހިމެނޭ އީއޯއައި އަކަށް ކަމަށް ވެސް އެޗްޑީސީން ބުންޏެވެ.

އެޗްޑީސީން ބުނީ އީއޯއައިތައް އިވެލުއޭޓްކުރުމުގައި ބިޒްނަސް މޮޑެލް އާއި ތަޖުރިބާ އާއި ކޮންޓްރެކްޓަރުގެ ޓާމްތަކާއި އެބައެއްގެ މާލީ ގާބިލުކަމުގެ އިތުރުން ސީއެސްއާރު ފަދަ ކަންކަމަށް ބަލާނެ ކަމަށެވެ.